
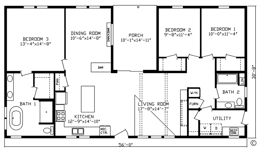
Alpha Series Floor Plans
Standard Features
STANDARD FEATURES:
- Range 30” Self Clean Gas
- Range Hood 30” w/CA-247
- Refrigerator 21 CF w/Ice & Water
- Dishwasher Standard
- Microwave Built-in w/Trim ring
- Water Heater 40 Gallon Electric
- Wall Covering Finished Drywall
- DRAPES/DÉCOR: No Drapes/Valances
- Furnace Gas High-Efficiency
- INTERIOR DOORS: White 2-Panel
- Oak Ridge Pro Black Shingles
- Ironstone siding
- Black vinyl lineals
- Black exterior trim (black fascia aluminum and black soffit vinyl)
- Cottonwood Shake
- Expresso Board and Batten—between columns, around windows under double gable of elevation 13
- Black front door with thumb upgrade door handle
- 9 lite white rear door with black tulip handle
- Black windows
- Folklore (all bedrooms) Carpet
- LX-323 European White Linoleum- balance of home
- White interior trim color
- 2 panel white interior doors
- Terrena Soapstone at kitchen and living room
- Aluma Marble at kitchen island and all other countertops in home
- Stewart Grey backsplash in kitchen full wall
- Stewart Grey backsplash in bath 1, bath 2, utility, pantry, 1 row
- Crescent countertop edge entire home
- Black cabinets at kitchen island and in pantry and range hood and utility.
- Stonehenge Balance of home.
- Carrara Marble ceramic in shower bath 1
- Tamber wood accent at foyer, living room wall 1, island, bath 1 beside tub and below windows wall 1.
- Black paint wall 1 of living room between tamber accents.
- Black pulls
- Black interior door handles
- Kitchen Sink 31” x 20” Black Drop-In
- Black faucets
- Stainless Steel Appliances
- Ibis Ceiling Beams
- Ship Loose 3 Transition Strips (LX323)
- DB-947 Tile Shower Std






